【Holland】 Leedon Green (D10)
FeaturedProject Details
LEEDON GREEN 绿墩雅苑
(D10 荷兰村)
【Core Central Condo】
Pricing From:
1.2.3.4 BEDROOM AVAILABLE
(GARDEN VILLA SOLD OUT)
| 1 Bed | 1 Bath |
| 463 Sqft | $1,584 psf |
Freehold 638 Units TOP 31 Mar 2024 Height 12 Storey 1 Bed 1 Bedroom + Study 2 Bed 2 Bed + Study 3 Bed 3 Bed + Utility 3 Bed + Utility + Lift 4 Bed + Utility + Lift 4 Bed Garden Villa
Luxury FREEHOLD Project in the Prime District D10! Own a Slice of Prime FREEHOLD Blue-chip in SG!
Less than 8 Mins Walk to Farrer Road MRT and Holland Village MRT!
Highly Covet Premium Prime District 10, Right NEXT to SG Biggest GCB Cluster!
Within 2km, there is a Prestigious Primary school, Nanyang Primary School [Top 1]!
Massive Land of 320,000sqft land size at almost 3 hectares with Astounding Facilities!
PROJECT DETAILS
| LAYOUT(S) |
Size |
PSF |
Price |
|---|---|---|---|
|
|
474+ | $2,859 | $1,355,132 |
|
1 Bed + Study
|
581 | $2,651 | $1,540,163 |
|
2 Bed
|
667+ | $2,674 | $1,766,606 |
|
2 Bed + Study
|
818+ | $2,863 | $2,342.000 |
|
3 Bedroom
|
958+ | $2,877 | $2,756,000 |
|
3 Bed (P)
|
1044 | $2,897 | $3,024,000 |
|
3 Bedroom (E)
|
1356 | $2,875 | $3,899,000 |
|
4 Bedroom (E)
|
1496+ | $2,914 | $4,359,000 |
|
Units Sold
|
|||
(P) = Premium
(E) = Exclusive
*All Pricing Are Subjected to Developer Changes & Availability. Contact Us Now.
| Project Name | Leedon Green |
|---|---|
|
|
|
Tenure: |
Freehold |
TOP: |
Mar 2024 |
Location: |
26 Leedon Heights, Singapore 266221 |
Number of Units: |
638 Units |
Building Height: |
12 Storey |
|
No of Facilities: |
33 |
|
Layout Types |
Sqft |
Units |
| 1 Bedroom | 474 - 603 | 49 |
| 1 Bed + Study | 527 - 689 | 96 |
| 2 Bedroom | 614 - 840 | 274 |
| 2 Bed + Study | 818 - 926 | 46 |
| 3 Bedroom | 958 - 990 | 33 |
| 3 Bedroom (E) | 1044 - 1163 | 45 |
| 3 Bedroom (P) | 1356 - 1640 |
34 |
| 4 Bedroom (E) | 1281 - 1582 | 56 |
| Garden Villa | 1389 - 1701 |
5 |
(E) = Exclusive
(P) = Premium
LOCATION DETAILS

Why Buyers buy here?
AMENITIES
MRT | School | Supermarket | Mall
FARRER ROAD MRT (680M AWAY)
HOLLAND VILLAGE MRT (780M AWAY)
East West Line (EWL)
North South Line (NSL)
North East Line (NEL)
Circle Line (CCL)
Downtown Line (DTL)
Thomson-East Coast Line (TEL)
Jurong Region Line (JRL)
Cross Island Line (CRL)
- 1. NANYANG PRIMARY SCHOOL [TOP 1]
- 2. RAFFLES GIRLS' PRIMARY SCHOOL [TOP 52]
- 3. NEW TOWN PRIMARY SCHOOL
- 4. QUEENSTOWN PRIMARY SCHOOL
- COLD STORAGE SUPERMARKET (800M AWAY)
SITE PLAN
FLOOR PLAN
Type: A1a
| Price: | $ | 1355132 | 1,355,132 |
| 1355132 | 0.25 | ||
| 1355132 | 0.75 | ||
| 25% *D.P: | $ | 338,783 | |
| 75% Loan: | $ | 1016349 | 1,016,349 |
| Tenure: | 30 | ||
| Interest: | 1% | ||
| Monthly: | $ | 3,269 | |
| 1016349 | 0.01 | ||
| 10163.49 | 30 | ||
| 304904.7 | 1016349 | ||
| 1321253.7 | 0.00360 | ||
| 4756.51332 | 0.6873 |
you have to Re-Tabulize 3 times for Calculation to be fully correct !!
*All Pricing Are Subjected to Developer Changes & Availability. Contact Us Now.
A1a 474 Sqft
A1a-R 603 Sqft
A1 474 Sqft
A1-R 603 Sqft
A1b 474 Sqft
A1b-R 603 Sqft
A1c 474 Sqft
A1c-R 603 Sqft
Type: AS3
| Price: | $ | 1540163 | 1,540,163 |
| 1540163 | 0.25 | ||
| 1540163 | 0.75 | ||
| 25% *D.P: | $ | 385,041 | |
| 75% Loan: | $ | 1155122.25 | 1,155,122 |
| Tenure: | 30 | ||
| Interest: | 1% | ||
| Monthly: | $ | 3,716 | |
| 1155122.25 | 0.01 | ||
| 11551.2225 | 30 | ||
| 346536.675 | 1155122.25 | ||
| 1501658.925 | 0.00360 | ||
| 5405.97213 | 0.6873 |
you have to Re-Tabulize 3 times for Calculation to be fully correct !!
*All Pricing Are Subjected to Developer Changes & Availability. Contact Us Now.
AS3 581 Sqft

AS1 538 Sqft

AS1 538 Sqft

AS1c 538 Sqft

AS1d 538 Sqft
AS2 538 Sqft

AS3a 581 Sqft

Type: B1b
| Price: | $ | 1766660 | 1,766,660 |
| 1766660 | 0.25 | ||
| 1766660 | 0.75 | ||
| 25% *D.P: | $ | 441,665 | |
| 75% Loan: | $ | 1324995 | 1,324,995 |
| Tenure: | 30 | ||
| Interest: | 1% | ||
| Monthly: | $ | 4,262 | |
| 1324995 | 0.01 | ||
| 13249.95 | 30 | ||
| 397498.5 | 1324995 | ||
| 1722493.5 | 0.00360 | ||
| 6200.9766 | 0.6873 |
you have to Re-Tabulize 3 times for Calculation to be fully correct !!
*All Pricing Are Subjected to Developer Changes & Availability. Contact Us Now.
B1b 614 Sqft

B2 667 Sqft

B1a 614 Sqft

B1 614 Sqft
B1c 614 Sqft

B1d 753 Sqft

B1d-R 753 Sqft

B2-R 786 Sqft

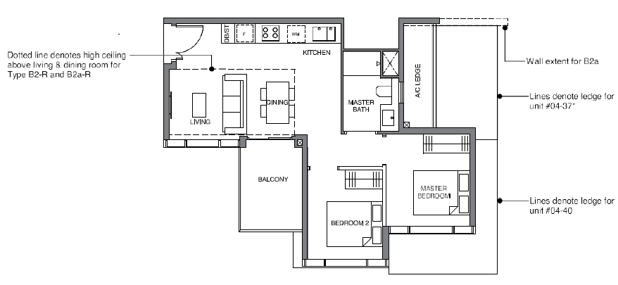
B2a 667 Sqft

B2a-R 786 Sqft

B3 700 Sqft

B3-R 818 Sqft

B4 700 Sqft
B4-R 818 Sqft
B4-P 797 Sqft

B4a 700 Sqft

B4a-R 807 Sqft

B4b 700 Sqft

B4b-R 807 Sqft

B5 710 Sqft

B5-R 840 Sqft

B5-P 775 Sqft

B5a 710 Sqft

B5a-R 840 Sqft

B5a-P 775 Sqft

B5b 710 Sqft

B5b-R 840 Sqft

B5b-P 775 Sqft

B5c 710 Sqft

B5c-P 775 Sqft
Type: BS1a
| Price: | $ | 2342000 | 2,342,000 |
| 2342000 | 0.25 | ||
| 2342000 | 0.75 | ||
| 25% *D.P: | $ | 585,500 | |
| 75% Loan: | $ | 1756500 | 1,756,500 |
| Tenure: | 30 | ||
| Interest: | 1% | ||
| Monthly: | $ | 5,650 | |
| 1756500 | 0.01 | ||
| 17565 | 30 | ||
| 526950 | 1756500 | ||
| 2283450 | 0.00360 | ||
| 8220.42 | 0.6873 |
you have to Re-Tabulize 3 times for Calculation to be fully correct !!
*All Pricing Are Subjected to Developer Changes & Availability. Contact Us Now.
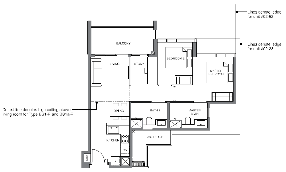
BS1a 818 Sqft

BS1a-R 926 Sqft

BS1a-P 872 Sqft

BS1 818 Sqft

BS1-R 926 Sqft

Type: C1
| Price: | $ | 2756000 | 2,756,000 |
| 2756000 | 0.25 | ||
| 2756000 | 0.75 | ||
| 25% *D.P: | $ | 689,000 | |
| 75% Loan: | $ | 2067000 | 2,067,000 |
| Tenure: | 30 | ||
| Interest: | 1% | ||
| Monthly: | $ | 6,649 | |
| 2067000 | 0.01 | ||
| 20670 | 30 | ||
| 620100 | 2067000 | ||
| 2687100 | 0.00360 | ||
| 9673.56 | 0.6873 |
you have to Re-Tabulize 3 times for Calculation to be fully correct !!
*All Pricing Are Subjected to Developer Changes & Availability. Contact Us Now.
C1 958 Sqft
Type: C2
| Price: | $ | 3024000 | 3,024,000 |
| 3024000 | 0.25 | ||
| 3024000 | 0.75 | ||
| 25% *D.P: | $ | 756,000 | |
| 75% Loan: | $ | 2268000 | 2,268,000 |
| Tenure: | 30 | ||
| Interest: | 1% | ||
| Monthly: | $ | 7,295 | |
| 2268000 | 0.01 | ||
| 22680 | 30 | ||
| 680400 | 2268000 | ||
| 2948400 | 0.00360 | ||
| 10614.24 | 0.6873 |
you have to Re-Tabulize 3 times for Calculation to be fully correct !!
*All Pricing Are Subjected to Developer Changes & Availability. Contact Us Now.
C2 1044 Sqft
C2-R 1163 Sqft
C2-P 1076 Sqft
C2a 1044 Sqft
C2a-R 1163 Sqft
C2a-P 1076 Sqft
Type: C3
| Price: | $ | 3899000 | 3,899,000 |
| 3899000 | 0.25 | ||
| 3899000 | 0.75 | ||
| 25% *D.P: | $ | 974,750 | |
| 75% Loan: | $ | 2924250 | 2,924,250 |
| Tenure: | 30 | ||
| Interest: | 1% | ||
| Monthly: | $ | 9,406 | |
| 2924250 | 0.01 | ||
| 29242.5 | 30 | ||
| 877275 | 2924250 | ||
| 3801525 | 0.00360 | ||
| 13685.49 | 0.6873 |
you have to Re-Tabulize 3 times for Calculation to be fully correct !!or Calculation to be fully correct !!
*All Pricing Are Subjected to Developer Changes & Availability. Contact Us Now.
C3 1356 Sqft
C3-P 1485 Sqft
Type: D1
| Price: | $ | 4359000 | 4,359,000 |
| 4359000 | 0.25 | ||
| 4359000 | 0.75 | ||
| 25% *D.P: | $ | 1,089,750 | |
| 75% Loan: | $ | 3269250 | 3,269,250 |
| Tenure: | 30 | ||
| Interest: | 1% | ||
| Monthly: | $ | 10,516 | |
| 3269250 | 0.01 | ||
| 32692.5 | 30 | ||
| 980775 | 3269250 | ||
| 4250025 | 0.00360 | ||
| 15300.09 | 0.6873 |
you have to Re-Tabulize 3 times for Calculation to be fully correct !!
*All Pricing Are Subjected to Developer Changes & Availability. Contact Us Now.
D1 1496 Sqft
D1a 1496 Sqft
D1a-R 1744 Sqft
D1a-P 1615 Sqft
Type: E1
| Price: | $ | SOLD | SOLD |
| 1108000 | 0.25 | ||
| 1108000 | 0.75 | ||
| 25% *D.P: | $ | - | |
| 75% Loan: | $ | - | - |
| Tenure: | 30 | ||
| Interest: | 1% | ||
| Monthly: | $ | - | |
| 831000 | 0.01 | ||
| 8310 | 30 | ||
| 249300 | 831000 | ||
| 1080300 | 0.00360 | ||
| 3889.08 | 0.6873 |
you have to Re-Tabulize 3 times for Calculation to be fully correct !!
*All Pricing Are Subjected to Developer Changes & Availability. Contact Us Now.
E1 2594 Sqft
DIRECT DEVELOPER PRICE
100% Best Price guarantee !
Early Bird Price ! Exclusive VVIP Preview !FAST RESPONSE TIME
Immediate Viewing of All Multiples Showflat for Comparison
Free Cash-Flow & Timeline Planning
Lifetime After-sales Services provided
BEST BUYERS' EXPERIENCE
Have A Ease of Mind Seamless Transition to Your Next New Home
Proven in-House Asset Capital Growth Strategists for Your Current to Future Property's Stages Direction
Call Us At +65-6888-8888
For Latest Pricing, Brochure & Viewing Arrangement.



































